熱海市桃山町・海望む高台・3階建3LDK+Sの物件詳細
熱海市桃山町・海望む贅を尽くした拘り邸宅
JR東海道本線「熱海」駅より車で約5分
[お問合せ番号] R5174
情報更新日:2026年01月30日 
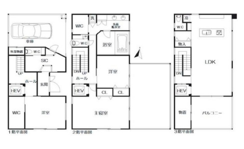
JR東海道本線「熱海」駅裏を山手に向かって車で約5分。駅周辺の街並みや相模湾の美しい景色を見渡す高台に佇む温泉付デザイナーズハウス、3階に開放感のあるLDKを設けた3LDK+Sの間取りです。ビューバス仕様の2階浴室やホームエレベーター、屋外プール、4台分の駐車スペース等を設けた拘りの邸宅です。

-
-
見晴らしの良い高台
贅を尽くしたデザイナーズハウス
3階建3LDK+Sの間取り
屋外プール、ホームエレベーター
温泉付
最寄り駅 徒歩 住所 |
価格 |
面積 間取り |
種別 築年月 |
JR東海道本線(東京~熱海) 『熱海駅』 徒歩13分 静岡県熱海市桃山町 |
29,800万円
|
建:221.92㎡
土:442.97㎡
間取り:3LDK+S
|
中古一戸建て
2018年06月
|
0120-393019
【営業時間】9:30~19:00
【定休日】第2・第4火曜日・毎週水曜日
物件概要
| 物件名 |
熱海市桃山町・海望む高台・3階建3LDK+S |
| 所在地 |
静岡県熱海市桃山町  |
| 交通 |
JR東海道本線(東京~熱海) 『熱海駅』 徒歩13分
|
| 価格 |
29,800万円 |
| 坪単価 |
|
㎡単価 |
|
| その他料金 |
温泉名義変更料528,000円 |
| 駐車場 |
4台駐車可(車庫1台分含む) |
| バイク置き場 |
|
駐輪場 |
|
| 間取り |
3LDK+S |
間取り詳細 |
間取図参照 |
建物面積 土地面積 |
建:221.92㎡ 土:442.97㎡ |
| 種別/構造 |
中古一戸建て/木造 |
築年月 |
2018年06月 |
引渡し |
相談 |
| 現況 |
入居中 |
総戸数/販売戸数 |
-/- |
土地権利 |
所有権 |
| 借地料 |
|
都市計画 |
未線引区域 |
用途地域 |
第二種中高層住居専用地域 |
| 地目 |
宅地 |
地勢 |
|
| 接道状況 |
東側 |
| セットバック |
|
主要採光面 |
|
私道負担面積 |
|
| 建ぺい率 |
60% |
容積率 |
160% |
階部分/階建て |
-/地上3階建て |
| 設備 |
公営水道|都市ガス|浄化槽|
|
| 条件 |
|
| 備考 |
温泉基本料9,240円/月(個人)、超過料あり
|
| 更新日 |
2026年01月30日 |
お問合せ番号 |
R5174 |
取引形態 |
仲介 |
※各種情報と現状に差異がある場合は、現状優先となります。